Kamp & Koolhof gebruikt cookies om de website naar behoren te laten werken, om functies voor social media te bieden en om onze website te analyseren. Op onze website kun je ons Cookiebeleid en Privacybeleid vinden.

Seendweg 20, Farmsum

  • Omschrijving

    ADRES
    Seendweg 20, 9936 GA, Farmsum.

    SOORT OBJECT
    Bedrijfsruimte met kantoorruimte. Eventueel ook te gebruiken als showroom/verkoopruimte.

    LOCATIE
    Gelegen op een kleinschalig bedrijventerrein, aan doorgaande weg, nabij de Farmsumerhaven en het chemiepark. Farmsum ligt tegen Delfzijl aan, met o.a. een zeehaven.

    BEREIKBAARHEID
    Het object is goed te bereiken te fiets, (vracht)auto en met het openbaar vervoer (bushalte op korte loopafstand).

    PARKEREN
    Op eigen terrein mogelijk.

    GEBRUIKSMOGELIJKHEDEN
    De bestemming van het object is: Bedrijf - 1. Ook geschikt voor grootschalige detailhandel.
    De huurder is er zelf verantwoordelijk voor dat het door zijn/haar voorgenomen gebruik in overeenstemming is of komt met het vigerende bestemmingsplan.

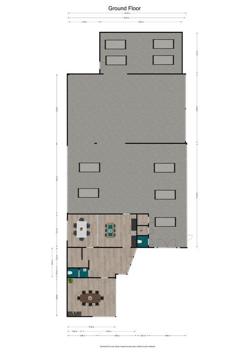
    OPPERVLAKTE
    Totaal te verhuren oppervlakte bedraagt BVO ca. 396m2.

    Verdeling:
    Bedrijfsruimte ca. 314m2.
    Kantoorruimte ca. 82m2.

    Sectionaaldeur ca. 375cm breed en ca. 240cm hoog.
    Interne hoogte bedrijfsruimte: Aan de buitenmuur ca. 305cm; nok ca. 500cm (zadeldak).
    Het pad aan de rechterzijde, leidend naar de achterzijde (voor bijv. extra opslagruimte) van het perceel, is ca. 300/325cm breed.

    Kantoorruimte totaal ca. 82m2, met daarin o.a. 2 kantoren ca. 14 en 26m2, kantine ca. 18m2 (met een complete keukeninrichting). Voorts een ruime en representatieve entree, toilet en bergruimte.
    De bedrijfsruimte heeft een eigen toilet.

    VOORZIENINGEN
    Het geheel wordt verhuurd inclusief o.a. de navolgende voorzieningen:
    -Verwarming
    -Verlichtingsarmaturen
    -Krachtstroom
    -Kantoorruimten incl. kantine, toilet etc.
    -Sectionaaldeuren
    -12 Zonnepanelen
    -5 Parkeerplaatsen aan de voorzijde

    Het te huur aangebodene is v.v. geïsoleerde wanden en daken, alsmede dubbel glas.

    Daarbij is het de laatste maanden op heel veel punten verbouwd en verbeterd, waarbij er feitelijk sprake is van een 'turn-key' oplevering. De foto's in de fotogalerij spreken onzes inziens voor zich, hoe perfect deze afwerking geworden is.

    HUUROVEREENKOMST
    De huurovereenkomst is op basis van het standaard model van de Raad voor Onroerende Zaken.

    HUURPRIJS
    De huurprijs is € 2.650,- per maand (te vermeerderen met omzetbelasting).

    SERVICEKOSTEN
    Servicekosten zijn niet van toepassing.

    ENERGIEKOSTEN
    Huurprijs is exclusief verbruikte gas, water en elektra (kosten huurder).

    OMZETBELASTING
    Indien de omzetbelasting niet kan worden verrekend, wordt de huurprijs met een nader vast te stellen bedrag verhoogd. In hoofdlijnen geldt vorenstaande niet voor bedrijven die B.T.W.-belaste handelingen verrichten.

    INDEXERING
    Indexering vindt jaarlijks plaats op basis van de consumentenprijsindex CPI Alle Huishoudens (2006=100).

    BETALING
    De huur, inclusief omzetbelasting en servicekosten, dient per maand bij vooruitbetaling te worden voldaan.

    ZEKERHEIDSTELLING
    Als zekerheidstelling geldt een bankgarantie ter grootte van twee maanden huur.

    HUURTERMIJN
    Huurprijs gebaseerd op huurtermijn van minimaal 2 jaar.

    OPZEGTERMIJN
    Er geldt een opzegtermijn vanaf 9 maanden (afhankelijk van overeengekomen huurtermijn).

    AANVAARDING
    Per direct beschikbaar.

    DISCLAIMER
    Deze informatie alsmede de inhoud van eventuele bijlagen is zorgvuldig samengesteld. Desondanks wordt onzerzijds geen aansprakelijkheid aanvaard ten aanzien van onvolledigheid en/of onjuistheid, dan wel de gevolgen daarvan. De vermelde informatie is een uitnodiging om in onderhandeling te treden en mag niet als grondslag voor een overeenkomst worden beschouwd. De kennisgeving van deze informatie alsmede een eventuele huurovereenkomst is onder voorbehoud definitieve goedkeuring opdrachtgever. Opdrachtgever heeft het recht de verhuurprocedure naar eigen goeddunken, zonder kennisgeving, te veranderen en heeft tevens het recht om te allen tijde met één of meer gegadigden te onderhandelen en/of zonder opgaaf van reden zich terug te trekken, welke niet zal leiden tot enige aanspraak en/of vergoeding. Overname, plaatsing op internetsites, verveelvoudiging op welke andere wijze dan ook van deze inhoud is niet toegestaan. Alle maten en oppervlakten zijn indicatief. Prijs-/druk-/zetfouten en wijzigingen voorbehouden.

  • Locatie

    [ { "address": "Seendweg 20", "zipCode": "9936 GA", "city": "Farmsum", "lat": 53.316661, "lng": 6.930783, "heading": 0, "pitch": 0 } ]
  • Kenmerken

    Overdracht

    Prijs
    € 2.650 p.m.
    Status
    Beschikbaar
    Oplevering
    per direct

    Bouw

    Hoofdbestemming
    Bedrijfsruimte
    Soort bouw
    Bestaande bouw
    Bouwjaar
    1978
    Onderhoud binnen
    Uitstekend
    Onderhoud buiten
    Uitstekend

    Oppervlakten

    Totaaloppervlakte
    396m²
    Vrije breedte
    14cm

    Indeling

    Verdiepingen
    1
    Voorzieningen
    Lichtstraten, Overheaddeuren, Krachtstroom, Betonvloer, Heater, Toilet, Pantry

    Energie

    Energielabel
    C

    Omgeving

    Ligging
    bedrijventerrein
    Parkeren onoverdekt
    5 Parkeerplekken
  • Reageer

    Uw bericht is naar ons verzonden. Wij nemen zo snel mogelijk contact met u op.

    Sorry, we kunnen helaas niet met zekerheid vaststellen of je een mens of een geautomatiseerde bot/spammer bent. Hierdoor kunnen we het formulier dat je hebt ingevuld niet verzenden. Probeer het opnieuw of neem direct contact op met de makelaar via e-mail.

    Er is iets mis gegaan met het versturen van het formulier.
    Controleer of u alle velden (goed) heeft ingevoerd en probeer het nog een keer.

    recaptcha
    reCAPTCHA
    PrivacyTerms

Vergelijkbare objecten

Deltaweg 52
9936 HK Farmsum
€ 2.400 p.m.
Kantoorruimte 370m²