Kamp & Koolhof gebruikt cookies om de website naar behoren te laten werken, om functies voor social media te bieden en om onze website te analyseren. Op onze website kun je ons Cookiebeleid en Privacybeleid vinden.

Derk Boeremastraat 8, Appingedam

Vraagprijs   € 310.000 k.k.  

Onder optie

Omschrijving

*NIEUWBOUW *GASLOOS *BEVINGBESTENDIG *3 SLAAPKAMERS

Helemaal splinternieuw! De kans voor een bevingbestendige 2-1-KAP nieuwbouwwoning: De wijk Westerdraai in Appingedam, net buiten het historisch stadscentrum gelegen, ondergaat op dit moment een grootschalige herstructurering in het kader van de sloop-/nieuwbouwregeling, onder regie van de NCG. Meerdere woningen worden in dit wijkdeel gesloopt, waarbij vervangende nieuwbouw terug zal keren. Zo ook deze woning aan de Derk Boeremastraat 8, zijnde een 2-1-kap woning op een kavel van ca. 243m2. Hierbij betreft het woningtype 'A', met een toekomstige woonoppervlakte van ca. 91m² + een zolder van ca. 11m². Daarbij met een oprit en een (reeds bestaande) houten garage. De nieuwbouw zal voorzien worden van zeer hoogwaardige isolatie en wordt er gasloos verwarmd middels een warmtepomp. Erg fraai is dat deze nieuwbouw, een buiging maakt naar het oorspronkelijk ontwerp uit de jaren '50: Let maar eens op het fraaie metselwerk, authentieke gootdetailleringen etc.

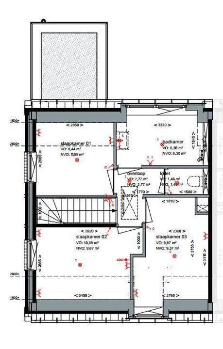
De toekomstige indeling zal o.a. omvatten op de begane grond een living met open keuken en een bijkeuken. Op de verdieping o.a. 3 slaapkamers, badkamer en een separaat toilet, alsmede een dakkapel (voor- en achterzijde). Voorts een bergzolder.

Wonen in de stad Appingedam is en blijft populair. Ook niet zo verwonderlijk want vele dagelijkse voorzieningen zijn hier voorhanden. Denk hierbij aan onderwijs (incl. nieuwe schoolcampus), openbaar vervoer met trein en bus, winkels, sport- en recreatieve mogelijkheden. De Brede School 'Olingertil' ligt zelfs op loopafstand.

Belangrijk om te weten:
-Beving bestendige nieuwbouw;
-Duurzaam;
-Warmtepomp (dus gasloos);
-Keuze indeling staat reeds vast;
-Kunststof kozijnen;
-Vloerverwarming begane grond;
-6 Zonnepanelen;
-Planning start bouw Q3-2026 (onder voorbehoud; de sloop is inmiddels gestart);
-Bepaalde individuele wensen zijn (onder voorbehoud) thans nog mogelijk (vaak met een meerprijs).

Let op:
Deze nieuwbouwwoning wordt 'casco' verkocht/geleverd, dat wil o.a. zeggen dat voor de aanleg/plaatsing van o.a. de keuken, sanitair en tegelwerk, tuin, buitenberging etc. de koper zelf rekening dient te houden houden.
Wel is door de huidige eigenaar reeds gekozen voor o.a.:
-Dakraam (zolder);
-Behangpakket (begane grond en 1e verdieping v.v. glasvliesbehang en wit 'afgesausd');
-Electrapakket begane grond (uitbreiding);
-Oprit met klinkerbestrating (ca. 30-35m2);
-Buitenkraan.

Goed om te weten:
-Aktepassering / betaling koopsom NA oplevering nieuwbouw;
-Definitief energielabel volgt bij oplevering (indicatie A+++);
-De bestaande houten garage blijft behouden (opgeven maatvoering is circa).

Disclaimer:
Aan de getoonde afbeeldingen (artist impressies, tekeningen/plattegronden) in de fotogalerij kunnen geen rechten aan ontleend worden. Zij zijn enkel bedoeld ter illustratie en algemene beeldvorming.

Voor verdere informatie kunt u uiteraard contact met ons opnemen (Tip: Kijk ook eens op wonenindenieuwedraai.nl voor meer informatie over dit project).

Kenmerken

Vraagprijs
€ 310.000 k.k.
Status
Onder optie
Oplevering
In overleg

Bouw

Soort woonhuis
Eengezinswoning, 2-onder-1-kapwoning
Soort bouw
Nieuwbouw
Bouwjaar
2026
Onderhoud binnen
Uitstekend
Onderhoud buiten
Uitstekend

Oppervlakten en inhoud

Woonoppervlakte
91m²
Perceeloppervlakte
243m²
Overig oppervlakte
11m²
Inhoud
350m³

Indeling

Aantal kamers
4
Aantal slaapkamers
3
Aantal badkamers
1
Verdiepingen
3
Voorzieningen
Dakraam, Mechanische ventilatie, Zonnepanelen

Energie

Energielabel
A+++
Isolatie
Dakisolatie, Dubbel glas, Muurisolatie, Vloerisolatie
Warm water
Elektrische boiler eigendom
Verwarming
Vloerverwarming gedeeltelijk, Warmtepomp

Buitenruimte

Ligging
Beschutte ligging, In woonwijk
Tuin
Achtertuin, Voortuin

Garage

Soort garage
Vrijstaand hout
Capaciteit
1

Locatie

[ { "lat": 53.3183271, "lng": 6.8547423 } ]
[{"featureType":"water","elementType":"geometry","stylers":[{"color":"#e9e9e9"},{"lightness":17}]},{"featureType":"landscape","elementType":"geometry","stylers":[{"color":"#f5f5f5"},{"lightness":20}]},{"featureType":"road.highway","elementType":"geometry.fill","stylers":[{"color":"#ffffff"},{"lightness":17}]},{"featureType":"road.highway","elementType":"geometry.stroke","stylers":[{"color":"#ffffff"},{"lightness":29},{"weight":0.2}]},{"featureType":"road.arterial","elementType":"geometry","stylers":[{"color":"#ffffff"},{"lightness":18}]},{"featureType":"road.local","elementType":"geometry","stylers":[{"color":"#ffffff"},{"lightness":16}]},{"featureType":"poi","elementType":"geometry","stylers":[{"color":"#f5f5f5"},{"lightness":21}]},{"featureType":"poi.park","elementType":"geometry","stylers":[{"color":"#dedede"},{"lightness":21}]},{"elementType":"labels.text.stroke","stylers":[{"visibility":"on"},{"color":"#ffffff"},{"lightness":16}]},{"elementType":"labels.text.fill","stylers":[{"sa turation":36},{"color":"#333333"},{"lightness":40}]},{"elementType":"labels.icon","stylers":[{"visibility":"off"}]},{"featureType":"transit","elementType":"geometry","stylers":[{"color":"#f2f2f2"},{"lightness":19}]},{"featureType":"administrative","elementType":"geometry.fill","stylers":[{"color":"#fefefe"},{"lightness":20}]},{"featureType":"administrative","elementType":"geometry.stroke","stylers":[{"color":"#fefefe"},{"lightness":17},{"weight":1.2}]}]

Reageer

Uw bericht is naar ons verzonden. Wij nemen zo snel mogelijk contact met u op.

Sorry, we kunnen helaas niet met zekerheid vaststellen of je een mens of een geautomatiseerde bot/spammer bent. Hierdoor kunnen we het formulier dat je hebt ingevuld niet verzenden. Probeer het opnieuw of neem direct contact op met de makelaar via e-mail.

Er is iets mis gegaan met het versturen van het formulier.
Controleer of u alle velden (goed) heeft ingevoerd en probeer het nog een keer.

recaptcha
reCAPTCHA
PrivacyTerms