Kamp & Koolhof gebruikt cookies om de website naar behoren te laten werken, om functies voor social media te bieden en om onze website te analyseren. Op onze website kun je ons Cookiebeleid en Privacybeleid vinden.

Kustweg 14 C, Delfzijl

Vraagprijs   € 995 p.m. ex.  

Omschrijving

*APPARTEMENT MET ZEEZICHT *LIFT *3 SLAAPKAMERS *2 BALKONS

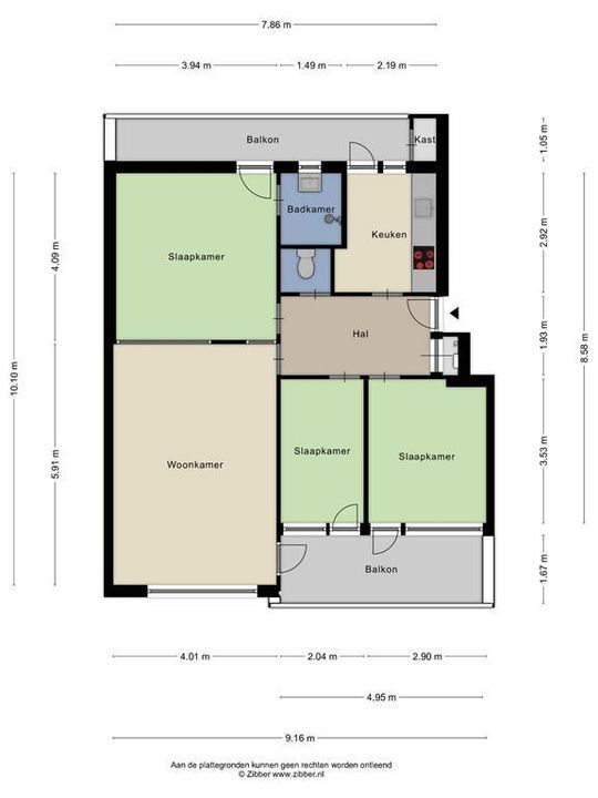
Dit comfortabele HOEKAPPARTEMENT is gesitueerd op de bovenste woonlaag (4e etage) van de 'Polarisflat'. Het appartement heeft een vrij uitzicht over de Eems en het centrum van Delfzijl. Gelegen in een levendige omgeving, nabij o.a. het Eemshotel, Muzeeaquarium, zeehaven, centrum, trein- en busstation. Keurig verzorgd geheel en gemoderniseerd in de periode 2016-2023. Mooie, functionele indeling met o.a. woonkamer, keuken, badkamer en 3 slaapkamers, maar ook met 2 balkons, lift en een privé (fietsen)berging (begane grond).

Indeling:
Entree/hal, wandcloset, woonkamer met fraai uitzicht én zijraam, totaal 3 slaapkamers, verzorgde badkamer met douche en wastafelmeubel, keuken met verzorgde keukeninrichting v.v. enige inbouwapparatuur, ruim balkon aan de voor- en achterzijde.

CV verwarmd (HR combiketel); volledig v.v. HR++ glas.

Huurprijs: € 995,- per maand; exclusief gas, water, elektra.
Waarborgsom: 2 maand huur.
Minimale huurperiode: 2 jaar.

Er kan evt. een garagebox bij worden gehuurd ad. € 80,- per maand.

Om in aanmerking te komen voor dit appartement stelt de verhuurder een aantal eisen:
-Netto maandinkomen: € 3.000,-.
-Indien het maandinkomen lager is dan € 3.000,- kunt u alleen in aanmerking komen voor dit appartement, indien er iemand garant voor u wil staan.
- Roken niet toegestaan.
- Huisdieren niet toegestaan.
- Leeftijd huurder(s) vanaf 55 jaar.
- Geen inwonende kinderen.

LET OP:
-Dit appartement wordt alleen verhuurd aan personen afkomstig uit één huishouden.

===

GOED OM TE WETEN:

Kamp & Koolhof makelaars en taxateurs werkt met de checklist Veilige Verhuur.
Indien u een woning wilt huren via ons makelaarskantoor, dan wordt u uitgebreid gescreend. Dit vindt plaats voordat er een huurcontract getekend kan gaan worden (uiteraard conform de AVG richtlijnen).

U kunt hierover meer informatie lezen op onze website kampenkoolhof.nl / woning huren.

Kenmerken

Vraagprijs
€ 995 p.m. ex.
Inrichting
Gestoffeerd
Status
Beschikbaar
Oplevering
Per direct

Bouw

Soort appartement
Portiekflat, Appartement
Woonlaag
4
Soort bouw
Bestaande bouw
Bouwjaar
1960
Onderhoud binnen
Goed
Onderhoud buiten
Goed
Bijzonderheden
Toegankelijk voor gehandicapten, Toegankelijk voor ouderen

Oppervlakten en inhoud

Woonoppervlakte
80m²
Inhoud
240m³

Indeling

Aantal kamers
4
Aantal slaapkamers
3
Aantal badkamers
1
Verdiepingen
1
Voorzieningen
Lift

Energie

Energielabel
D
Isolatie
Dubbel glas
Warm water
C.V.-ketel
Verwarming
C.V.-ketel
Ketel
(Combi-ketel, Eigendom)

Buitenruimte

Ligging
Vrij uitzicht, Zeezicht
Balkon
Ja
Schuur
Inpandig

Garage

Soort garage
Garage mogelijk

Locatie

[ { "lat": 53.335094, "lng": 6.925699 } ]
[{"featureType":"water","elementType":"geometry","stylers":[{"color":"#e9e9e9"},{"lightness":17}]},{"featureType":"landscape","elementType":"geometry","stylers":[{"color":"#f5f5f5"},{"lightness":20}]},{"featureType":"road.highway","elementType":"geometry.fill","stylers":[{"color":"#ffffff"},{"lightness":17}]},{"featureType":"road.highway","elementType":"geometry.stroke","stylers":[{"color":"#ffffff"},{"lightness":29},{"weight":0.2}]},{"featureType":"road.arterial","elementType":"geometry","stylers":[{"color":"#ffffff"},{"lightness":18}]},{"featureType":"road.local","elementType":"geometry","stylers":[{"color":"#ffffff"},{"lightness":16}]},{"featureType":"poi","elementType":"geometry","stylers":[{"color":"#f5f5f5"},{"lightness":21}]},{"featureType":"poi.park","elementType":"geometry","stylers":[{"color":"#dedede"},{"lightness":21}]},{"elementType":"labels.text.stroke","stylers":[{"visibility":"on"},{"color":"#ffffff"},{"lightness":16}]},{"elementType":"labels.text.fill","stylers":[{"sa turation":36},{"color":"#333333"},{"lightness":40}]},{"elementType":"labels.icon","stylers":[{"visibility":"off"}]},{"featureType":"transit","elementType":"geometry","stylers":[{"color":"#f2f2f2"},{"lightness":19}]},{"featureType":"administrative","elementType":"geometry.fill","stylers":[{"color":"#fefefe"},{"lightness":20}]},{"featureType":"administrative","elementType":"geometry.stroke","stylers":[{"color":"#fefefe"},{"lightness":17},{"weight":1.2}]}]

Reageer

Uw bericht is naar ons verzonden. Wij nemen zo snel mogelijk contact met u op.

Sorry, we kunnen helaas niet met zekerheid vaststellen of je een mens of een geautomatiseerde bot/spammer bent. Hierdoor kunnen we het formulier dat je hebt ingevuld niet verzenden. Probeer het opnieuw of neem direct contact op met de makelaar via e-mail.

Er is iets mis gegaan met het versturen van het formulier.
Controleer of u alle velden (goed) heeft ingevoerd en probeer het nog een keer.

recaptcha
reCAPTCHA
PrivacyTerms